
八王子に新たな市民のサードプレイスが誕生!
2026年秋、八王子駅南口にあった医療刑務所の跡地に、新たに公園、ライブラリ、ミュージアム、交流スペースが一体となった「桑都の杜」が誕生します。新施設では、地域の皆さんとつながり、様々なワクワクを生み出します。学べて、遊べて、交流できるほか、災害時には避難場所にもなります。暮らしを楽しく、人生を豊かにする場所、ぜひご期待ください!
※サードプレイス:自宅や職場以外の心地よい第3の居場所やコミュニティ

みんなの公園
八王子の自然環境を再現した公園では、植樹や手入れを、市民と一緒に行い育てていく「みんなの公園」を目指しています。8つの山によって構成される公園には、インクルーシブ遊具を設置し、展望広場からは八王子の山並みを見ることができます。「大屋根広場」や「芝生広場」は様々なイベントに活用いただけます。また災害時には避難場所になります。
憩いライブラリ
利用者に新たな発見を促す独自分類を取り入れたライブラリは、カフェや公園に本を持ち出し好きな場所で読書を楽しめる「どこでも図書館」を目指しています。自習スペースやグループ学習に利用できるスペース、乳幼児向けの「こどもひろば」なども備えています。スキルシェアリングを行うなど、人を中心に据えたヒューマンライブラリを実現します。


歴史・郷土ミュージアム
八王子の歴史や民俗、自然について紹介する常設展示、収蔵庫の一部を公開し、コレクションを間近で見られる収蔵展示室、ものづくりを体験できる体験展示室があります。ヒノキづくりの木造舞台のある活動展示室では、伝統芸能や市民による文化芸術活動をお楽しみいただけます。文化財の展示に適した環境を備えた公開承認施設をめざします。
交流スペース
市民同士の交流や活動を促す交流スペースは、市民の作品展示やサークル活動にご利用いただけます。公園、ライブラリ、ミュージアムの機能をつなぐ交流拠点「SPOT HACHIOJI」には、コーディネーターが常駐し、市民の様々な活動をサポートします。地域発のチャレンジショップやカフェも併設し、新たな文化を発信していきます。

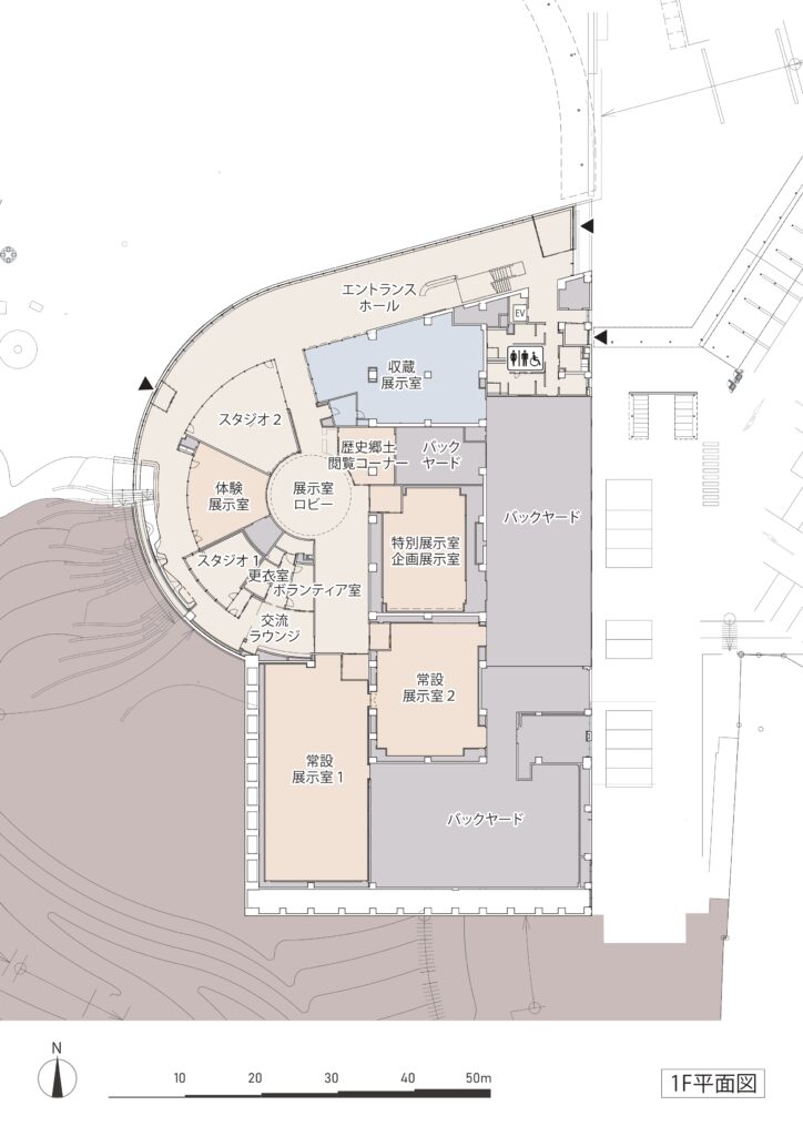
平面図のご紹介
※調整中のため今後変更になる可能性があります



250823_page-0001-724x1024.jpg)

環境・防災・ユニバーサルデザインにも配慮

施設概要
| 所在地 | 八王子市子安町三丁目26番1号 |
| 敷地面積 | 52,047平方メートル |
| 延床面積 | 約8,120平方メートル ※レストラン棟、大屋根広場、その他付属棟の床面積含まず |
| 主な機能毎内訳 | ライブラリ・交流エリア:約3,250平方メートル展示・収蔵エリア:約3,150平方メートルその他職員エリア等:約1,720平方メートル |
| その他付属棟等床面積 | 大屋根広場:約507平方メートルレストラン棟(民間提案):約300平方メートル防災倉庫:約125平方メートル屋外倉庫:約105平方メートル四阿・屋外トイレ等:約311平方メートル |
| 階層 | メイン棟:地上2階 活動展示室:地上1階 |
| 駐車場 | 駐車場155台・臨時駐車場75台 |
今までの歩み
八王子医療刑務所跡地を活用した「集いの拠点」整備に向け、以下のような取り組みを行ってまいりました。
2015年度 八王子医療刑務所移転後用地活用計画策定
2018年度 八王子駅南口集いの拠点整備基本計画策定
2020年度 都市計画決定
2021年度 用地取得等
2022年度 PFI事業者の選定
詳細はこちらを御覧ください。

八王子医療刑務所について
八王子医療刑務所は、全国に4カ所あった医療刑務所の一つで、医療処置が必要な受刑者が収容されていました。1878年(明治11年)に設立された八王子監獄署が起源で、1895年(明治28年)から現在の敷地で受刑者の更生や社会復帰をサポートしてきました。高さ4メートルの塀に囲まれ、内科・外科病棟、精神病棟、作業療法棟、体育館などがありました。2018年(平成30年)に東京都昭島市の国際法務総合センター内に東日本成人矯正医療センターとして移転して閉所し、120年以上に及んだ役目を終えました。

※「集いの拠点」は仮称であり、名称変更の可能性があります